Co-lecturing with David Erdman, the ‘Construction Communication’ course (HKU | MArch I studio | Fall 2013) introduced students to the methods by which architects strategise, rationalise and communicate architectural designs. In any office whose work is notable, the intention of Construction Documentation (CD) is to encrypt and codify what are otherwise complex architectural effects into clear methods of construction.
“Without the architect’s faith that geometrically defined lines will engender something else more substantial yet discernable through drawing, without faith in the genetic message inscribed on paper, there is no architecture.”
(Robin Evans, The Projective Cast; Architecture and Its Three Geometries, Introduction: Composition and Projection, MIT Press 1995)
Objectives
Architects do not build. We communicate a design to builders. This course introduced students to the methods by which architects strategize, rationalize and communicate architectural designs. All architects use the same drawing standards for communicating their projects to contractors and consultants. At their root, these standards are techniques of notation. They are abstract graphical encryptions that leave open their precise interpretation and understanding.
The conventions for assembling and organizing these standards varies greatly between every office; there is no standard construction document set. An intelligent designer has to edit and prioritize different areas of their design. CD’s (as they are referred to) are a reflection of these priorities and are used to make a case for a project’s feasibility.
In any office whose work is notable, the intention of these documents is to encrypt and codify what are otherwise complex architectural effects into clear methods of construction. This knowledge and skill is crucial for any designer. Without an understanding of how to develop a drawing set that strategically reflects the rationale and efficiencies of complex design, built architectural innovation would not occur.
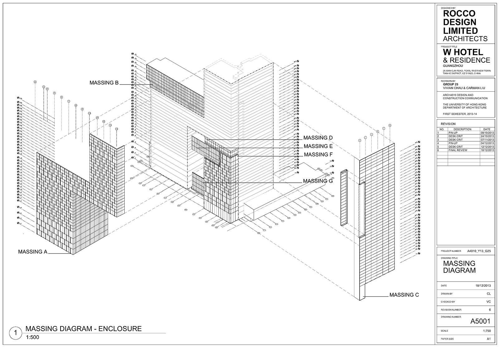
Construction Communication asked students to work in groups. Each group analysed, remodelled, re-drew and formulated a CD set for a given case study. The case studies are among the most innovative projects in the world.
28 projects for case studies were chosen. These were assigned an initial bias for students to investigate: enclosure, structure or geometry. The final required outcome for the course was an abbreviated CD set, containing basic and detailed information that is reflective of the bias, design intent and sensibility of the case study.
Structure






























